Venta de solar en Tona Barcelona

Ref: 014723

Estado: Buen estado

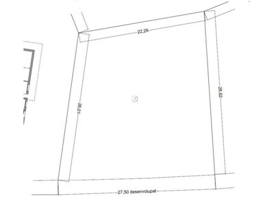
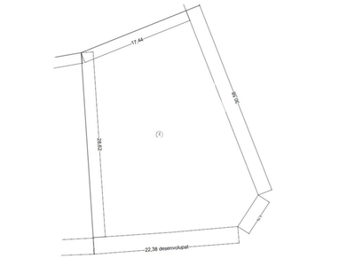
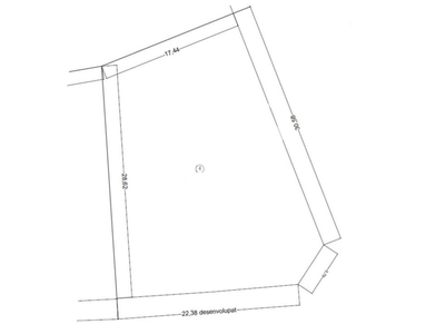
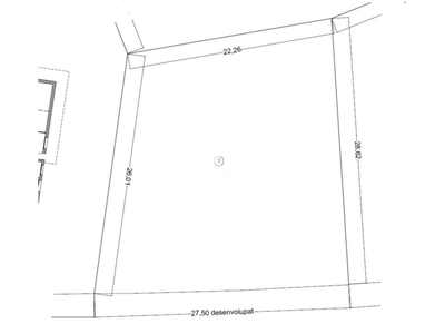
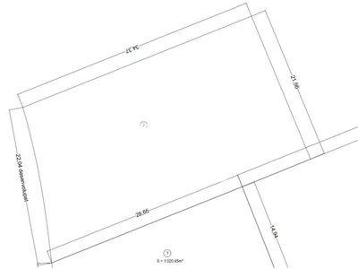
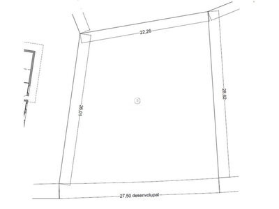
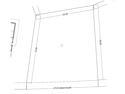
Superfície: 671 m2

Habitaciones: 0

Baños: 0

Características

No se ha especificado ninguna característica

161.000 €

(671 m2 - 239,94 €/m2)

Descripción

Solar en el centro, zona residencial de la población, llano, soleado, parcela de 671,31 m2. Ideal para construir torre de 4 vientos. ¡Mejor ubicación imposible! ¡Infórmate! Solar en el centro, zona residencial de la población, llano, soleado, parcela de 671,31 m2. Ideal para construir torre de 4 vientos. ¡Mejor ubicación imposible! ¡Infórmate!

Certificado energético

Consumo:
En proceso
Emisiones:
En proceso
Inmueble gestionado por:
NOVA IMMOBILIARIA 2007